Let’s Design a Family Room
This post is first, in a series, where I walk you through the steps I use to design for clients. Since the holidays are right around the corner, I’m going to start in the family room.
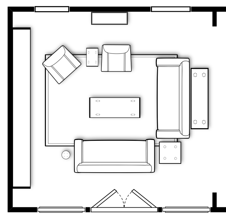
My first step is to create a furniture plan. I layout the entire room (to include door openings, windows, fireplace, etc.) in a space planning software and begin placing the furniture. One of the biggest mistakes I see people make is on the SCALE of furniture. Always measure! Here is an example of a furniture plan I created for one of my clients and a photo of the finished room.
After I have preliminary furniture layout, I begin selecting the pretty pieces. I like to start with a rug or fabric for color inspiration and then begin selecting the large upholstery pieces (sofa and chairs). For this space, I’m keeping it classic and mostly traditional with some soft color mixed in.
I usually keep the sofas (or sectional) in a neutral fabric. Then, bring in color with the chairs and pillows. In this room, I selected a classic 3-cushion sofa with wood legs and paired it with a swivel chair in a blue fabric. This pulls from the rug. I love a pretty coffee table and this one has such a unique shape. When you have a L-shaped seating arrangement (sofa with two chairs or sofa and loveseat) then a rectangle works best. When you have two sofas or a large sectional, then round is a better shape.
Don’t forget lighting! I selected a large, but airy feeling chandelier with a mix of bronze and gold metals. If you have room behind your sofa, then add a console table. It’s a great spot for a lamp, a few accessories and a glass of wine.
Then it’s time to add the finishing touches. The pillows are a good mix of masculine and feminine with the patterns and bring in the color from the rug. For the table lamp, I liked using a dark base for the console table and every room could use a floor lamp.
There are still a lot of other pieces to pick out - accessories, end tables, artwork and draperies. Hopefully, this has been helpful as you begin to design your own family room. Got a question? Please leave it in the comments and I’ll do my best to answer it.
Most everything I sourced in this post is from Ballard Designs.
Thanks for Reading!
Jennifer

